26
$290,000 Sale
Listed 127 days ago
7000 Apollo Road Unit# 5 Lot# 5
· 0
· 0.0
· 0
· -
Key Facts
Key facts for 7000 Apollo Road Unit# 5 Lot# 5
Property Type
Other, Other
Parking
Garage: No, 0 parking
MLS #
10349465
Size
-
Basement
-
Listed on
-
Lot size
-
Tax
-
Days on Market
-
Year Built
-
Maintenance Fee
$22.64/mo
Description
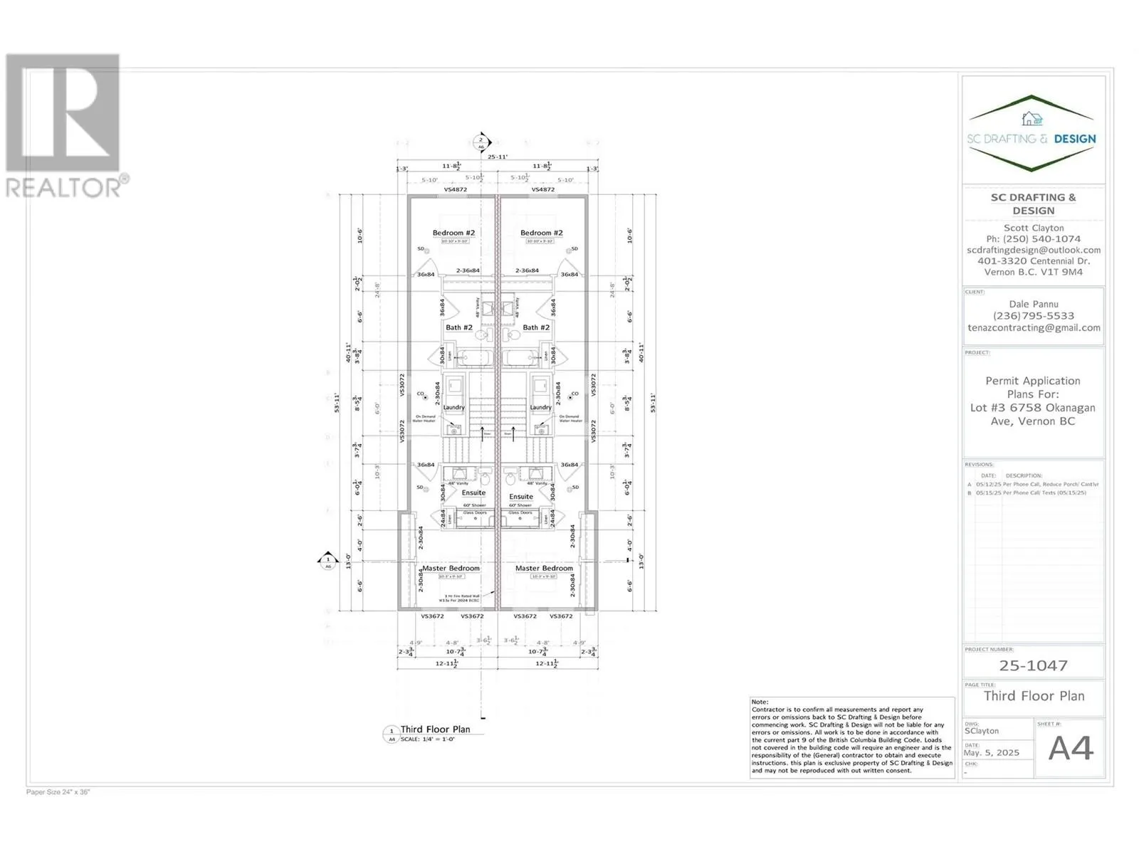
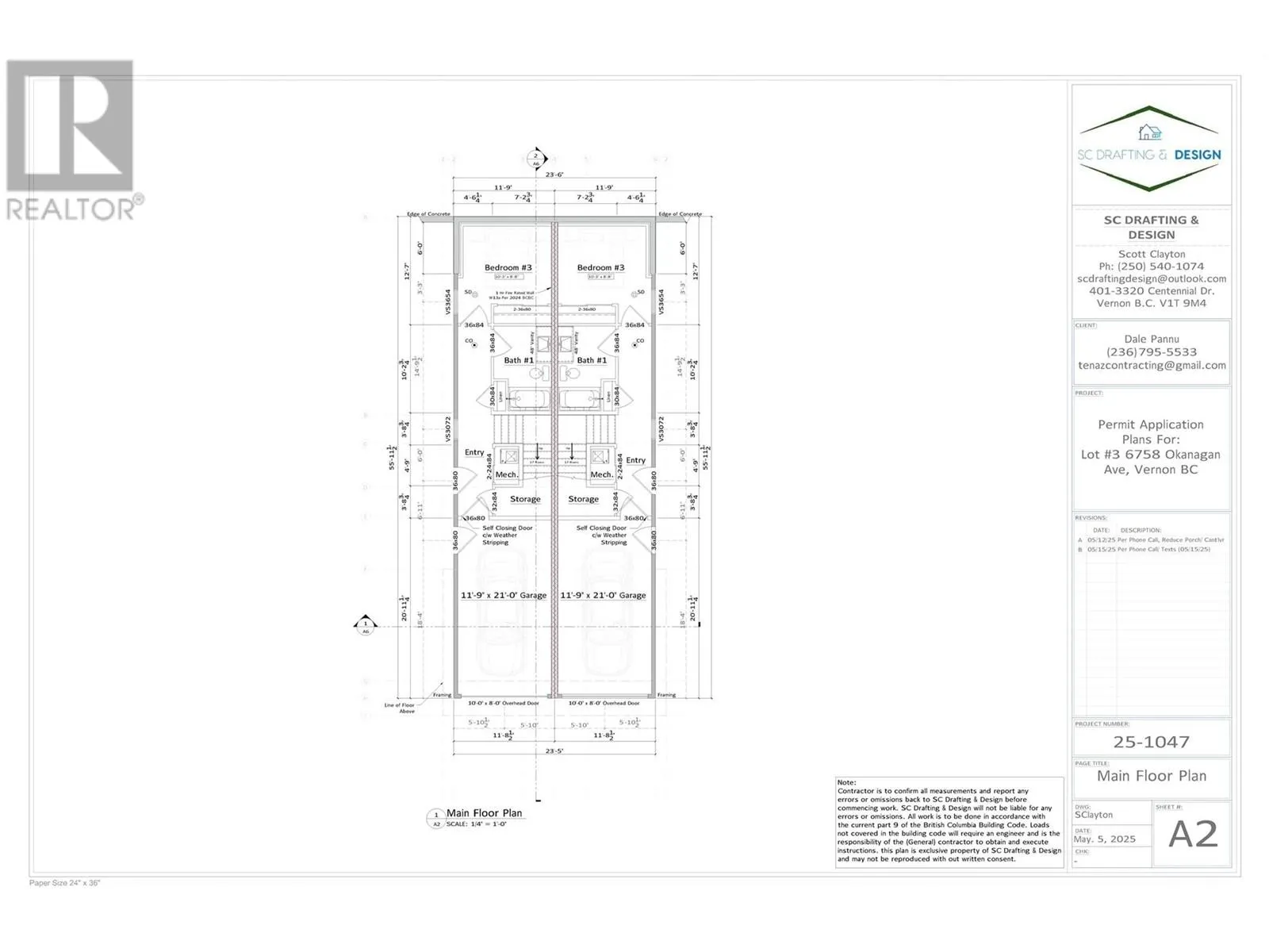
Excellent opportunity for builders or investors! Strata Lot 5 is a fully serviced, walk-up ready lot in a prime Vernon location—just a 10-minute walk to Okanagan Lake and directly across from Marshall Fields and the Vernon Recreation Centre. Zoned for secondary suites, this property is ideal for add...ing a mortgage helper or maximizing rental income. A new duplex concept design is available, featuring a mirrored layout of 3 bedrooms and 2 bathrooms per side, each with a 234 sq.ft. single-car garage and approximately 1,650 sq.ft. of living space. This is a perfect setup for investors looking to rent out both sides. Flexible build options: bring your own builder or work with ours. Low bare-land strata fees at just $22.64/month. ""Duplex design currently has one Title, the developer plans to dissolve the bare-land strata to townhouse strata in order to split titles."" Contact the listing agent for the full design package and builder options. (The price listed is for the development lot only, concept plans are attached to give an idea of what can be built), (id:10452)
Similar Properties (No results)
Listing courtesy of: Coldwell Banker Executives Realty
This REALTOR.ca listing content is owned and licensed by REALTOR® members of The Canadian Real Estate Association.